【 一戸建て 】部屋数がとても多く大人数の家族でもOKです。

面積価格

土地/194.03㎡ (58・69坪)

SOLD OUT

値下げいたしました。

物件写真・間取り

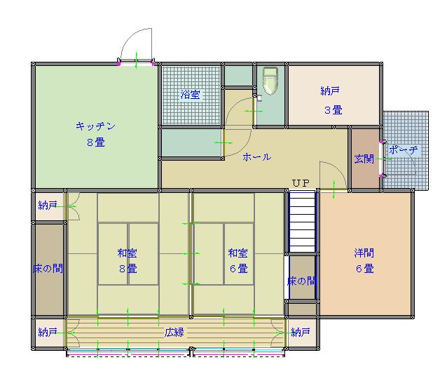
1階間取図
1階間取図
2階間取図
2階間取図

物件概要

交通機関 
物件名

平田中古住宅

価格

SOLD OUT

土地権利 所有権
建築確認番号

土地面積

194.03㎡ (58・69坪)

建物構造 木造
階 / 階数

2階建

都市計画 市街化区域
建ぺい率

60%

容積率

200%

その他制限

道路幅員

4.5m

地目 宅地
引渡し 相談
取引態様 売主

物件地図

資料請求・お問い合わせ

物件名平田中古住宅
お問い合わせ内容
お名前
電話番号
メールアドレス
確認のため同じアドレスをご入力ください。
備考欄ご希望の連絡方法、見学希望日、希望条件、質問などがございましたら、ご記入ください
お知らせ
会社案内

株式会社 中部

松本市惣社512番地

フリーダイアル0120-711-923,TEL 0263-32-8080,FAX 0263-32-8081
メールフォームはこちら

宅建免許番号:長野県知事(16)224号